Vyšehrad Garden
Na Pankráci 322/26 – Praha 4
| Nájemné: | od 16,50 EUR za m2/měsíc |
|---|---|
| Servisní poplatky: | 210 CZK za m2/měsíc |
| Parking: | 130 EUR za místo/měsíc |
| Deposit: | 3 měsíční nájmy |
| Minimální doba nájmu: | 36 měsíců |
(Ceny jsou uvedeny bez DPH)
Vyšehrad Garden je moderní administrativní budova na prestižní adrese Na Pankráci 26. Skvělá dostupnost do centra Prahy dělá z nemovitosti mimořádně atraktivní sídlo pro prémiové nájemce. Pro ně je volně přístupná zahrada ve vnitrobloku, kterou lze využít pro práci uprostřed zeleně, i pro setkávání s obchodními partnery. Administrativní budova se nachází v docházkové vzdálenosti od jedné z nejvýznamnějších pražských památek – Vyšehradu. Městská část Praha 4 je oblíbeným sídlem významným společností, především pro svou skvělou dostupnost do centra Prahy. Jde o jednu z nejdůležitějších byznysových lokalit v širším centru hlavního města.
Chlazení/Klimatizace
Výtah
Parkování
Dispoziční změny
Zdvojená podlaha
Otvíratelná okna
Recepce
Optické připojení k internetu
Ostraha 24/7
Energetická třída: C - Úsporná
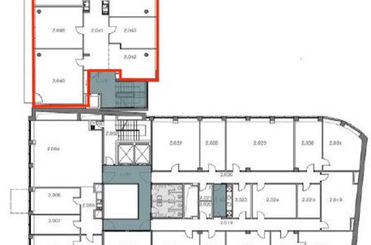
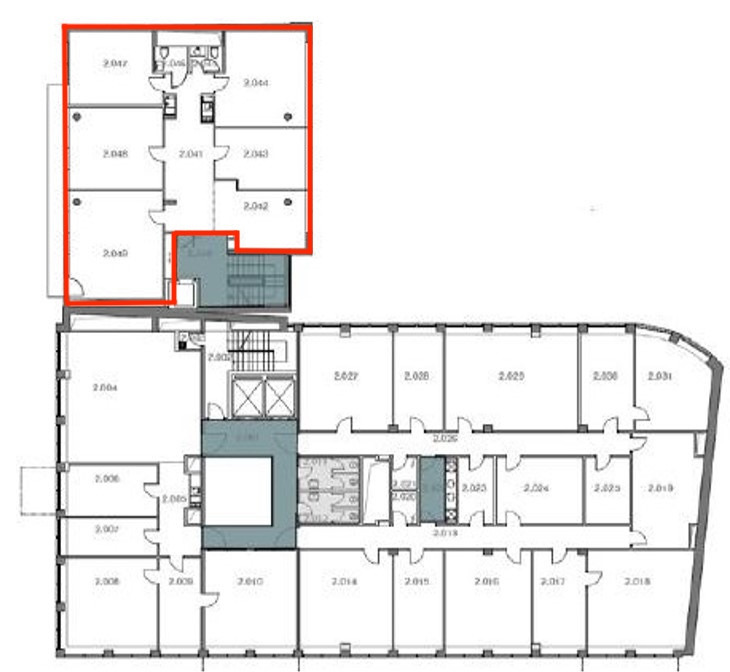
Volné prostory
Typ
Stáhnout nabídku
Půdorys
Velikost
Podlaží
Cena za m2
K dispozici
Kontakt







































