Corso Karlín II
Křižíkova 148/34 – Prague 8
| Rent: | od 20 EUR per sqm/month |
|---|---|
| Service charges: | 145 CZK per sqm/month |
| Parking: | 145 EUR per place/month |
| Deposit: | 3 monthly rents |
| Minimum rental period: | 60 months |
(Prices are without VAT)
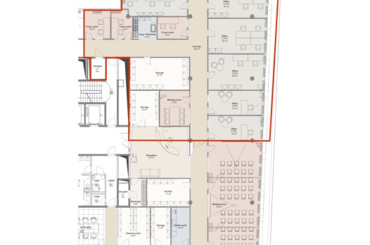
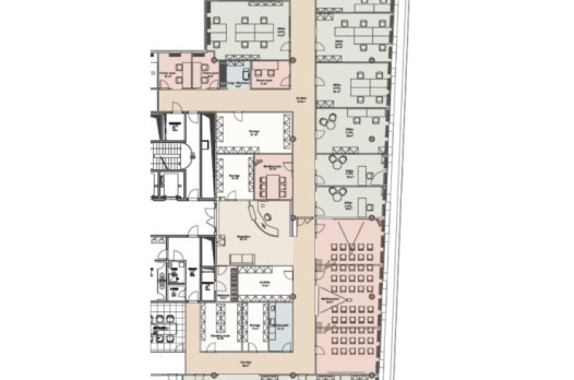
The CORSO II A office building, built in 2007-2008, is located in Křižíkova Street in Karlín, in the neighbourhood of the successful Corso Karlín project. The author of the project is the world-famous Spanish architect Ricardo Bofill. It is a seven-storey building with an irregular plan and a slightly curved eastern facade. The top two floors are glazed to full height. There are sloping terraces on the 3rd and 6th floors.
Corso II A provides tenants with 13,000 sqm of office space and ample parking.
The location offers excellent transport accessibility by car and public transport. Within walking distance there is a metro station B - Křižíkova with many tram connections. Karlín is one of the most popular office locations offering full civic amenities, renowned restaurants, first-class hotels and easy access to the centre of Prague.
Free spaces
Contact


























