Tokovo
Jankovcova 1569/2c – Prague 7
| Rent: | od 15,50 EUR per sqm/month |
|---|---|
| Service charges: | 175 CZK per sqm/month |
| Parking: | 3 500 EUR per place/month |
| Deposit: | 3 monthly rents |
| Minimum rental period: | 12 months |
(Prices are without VAT)
Thanks to its height of 68 metres, Tokovo is rightly ranked among the landmarks of Prague 7. The building is situated in Jankovcova Street directly on the Vltava River embankment and Libeňský Bridge near the metro stops C - Vltavská and B - Palmovka. The building offers high quality office space of technical specification A. The building has a canteen, gymnasium and bike room. A sunny roof terrace is available for relaxation. The office space has its own kitchen and sanitary facilities.
Cooling/Air conditioning
Elevator
Parking
Disposition changes
Raised floor
Reception
Storage
Attendance system (cards)
Flexible layout
Optical internet connection
Security 24/7
Backup power source
Bike room
Camera system
Energy class: B - Velmi úsporná
Free spaces
Type
Download offer
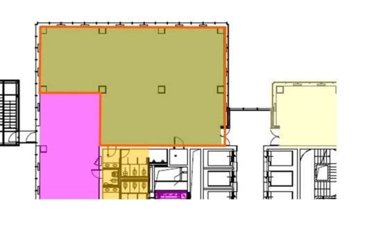
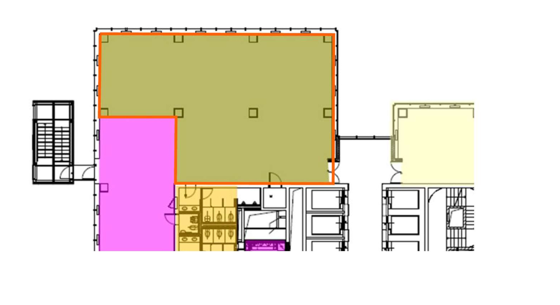
Floor plan
Size
Floor
Price per sqm
Available
Contact





















