Rosmarin Business Center
Dělnická 213/12 – Praha 7
| Nájemné: | od 312 Kč za m2/měsíc |
|---|---|
| Servisní poplatky: | 122 CZK za m2/měsíc |
| Parking: | 2 500 Kč za místo/měsíc |
| Deposit: | 3 měsíční nájmy |
| Minimální doba nájmu: | 24 měsíců |
(Ceny jsou uvedeny bez DPH)
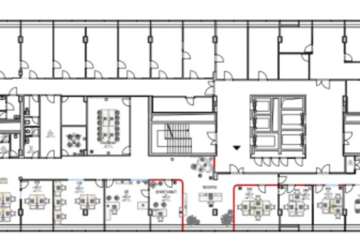
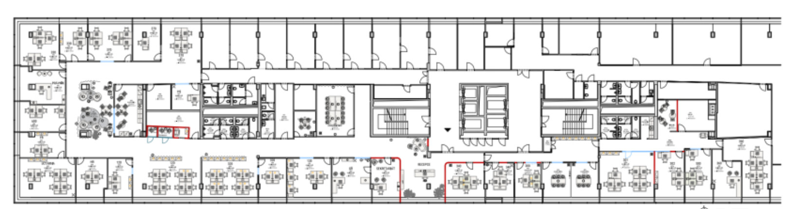
Rosmarin je zavedené administrativní centrum situované v rámci rychle se rozvíjející oblasti Prahy 7 – Holešovic, s celkovou kapacitou 23 500 m2. Poskytuje Veškeré výhody spojené s možností pracovat jen pár minut od historického centra Prahy. Rosmarin nabízí moderní kancelářské prostory i zázemí se skvělou dostupností a službami. Kromě kanceláří nabízí také volnočasové aktivity a další zázemí pro zaměstnance (kantýna, fitness, tančírna, odpočinkové terasy, obchod). Administrativní budova prochází průběžnou rekonstrukcí tak, aby pronajímané kancelářské plochy splňovaly nejvyšší možné standardy. Komfort nájemců doplňují také zmodernizovaná restaurační zařízení, společné prostory, odpočinkové zóny, konferenční sály a zasedací místnosti. Pro nájemce je k dispozici až 370 parkovacích míst v podzemních garážích.
Volné prostory
Kontakt













































