KeyStone
Pobřežní 667/78 – Prague 8
| Rent: | od 497 CZK per sqm/month |
|---|---|
| Service charges: | 150 CZK per sqm/month |
| Parking: | 3 500 CZK per place/month |
| Deposit: | 3 monthly rents |
| Minimum rental period: | 36 months |
(Prices are without VAT)
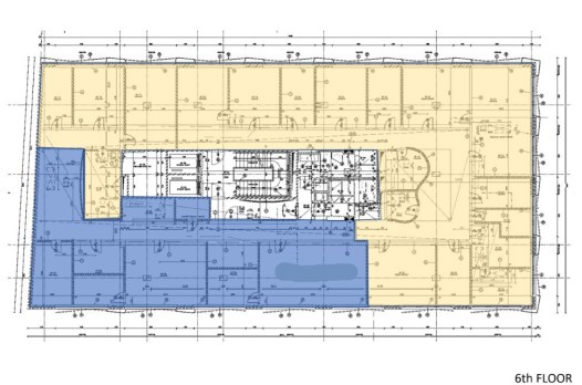
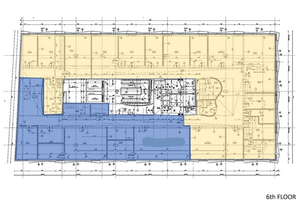
Built in 2012, Keystone was one of the first office buildings on Rohanské nábřeží and heralded the major development of this sought-after location. It was designed by architects Mathias Müller and Daniel Niggli of Swiss architecture firm EM2N. It impresses especially with its spectacular double façade and green garden on the roof terrace. Keystone is a rather intimate office building offering a total of 6,880 sqm of lettable space, of which 5,600 sqm is office space, 830 sqm retail space and 430 sqm roof terrace. A total of 83 parking spaces are available on the three underground floors. The building has excellent transport accessibility both by car and public transport (tram and metro stops - Křižíkova - are within walking distance). A bike room is available for tenants. The floor plan of the building with a service area with shared sanitary facilities in the middle of the floor allows flexible creation of both large (open space) and individual (cellular) offices. A typical floor area is 915 m2 and flexible subdivision into smaller units from 350 m2 is possible.
Free spaces
Contact























