Anděl Park
Radlická 3201/14 – Praha 5
| Nájemné: | od 16,80 EUR za m2/měsíc |
|---|---|
| Servisní poplatky: | 150 CZK za m2/měsíc |
| Parking: | 150 EUR za místo/měsíc |
| Deposit: | 3 měsíční nájmy |
| Minimální doba nájmu: | 36 měsíců |
(Ceny jsou uvedeny bez DPH)
Anděl Park je multifunkční objekt postavený na pozemcích bývalé továrny Tatra Kopřivnice, který byl navržen Ing. arch. Václavem Aulickým, autorem žižkovského televizního vysílače nebo sídla České televize na Kavčích horách.
Nabízí flexibilní uspořádání kanceláří, které jsou vhodné pro velké i malé společnosti. Celkem disponuje téměř 20.000 m2 moderních, plně klimatizovaných kancelářských prostor.
Anděl Park je umístěn na křižovatce ulic Radlická a Karla Engliše s výtečnou dostupností MHD a veškerou odpovídající městskou infrastrukturou. Okolí umožňuje užívat si nákupů, kultury a stravování v podstatě nonstop. V blízkém sousedství Anděl Parku se nachází řada restaurací, obchodů, hotelů a dalších služeb.
Administrativní budova Anděl Park prošla celkovou modernizací, nabízí služby dvou centrálních recepcí, kompletní infrastrukturu i volnočasové aktivity přímo v projektu nebo v blízké pěší vzdálenosti. K přednostem patří ideální poměr parkovacích míst 1:63, klimatizace i otevíratelná okna, dvě venkovní odpočinkové terasy nebo zázemí kolárny.
Jako jedna z mála administrativních budov neúčtuje nájemcům podíl na společných prostorách. Nájemci tedy platí pouze využívanou kancelářskou plochu.
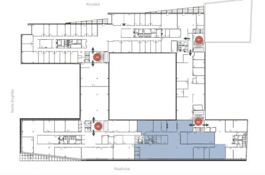
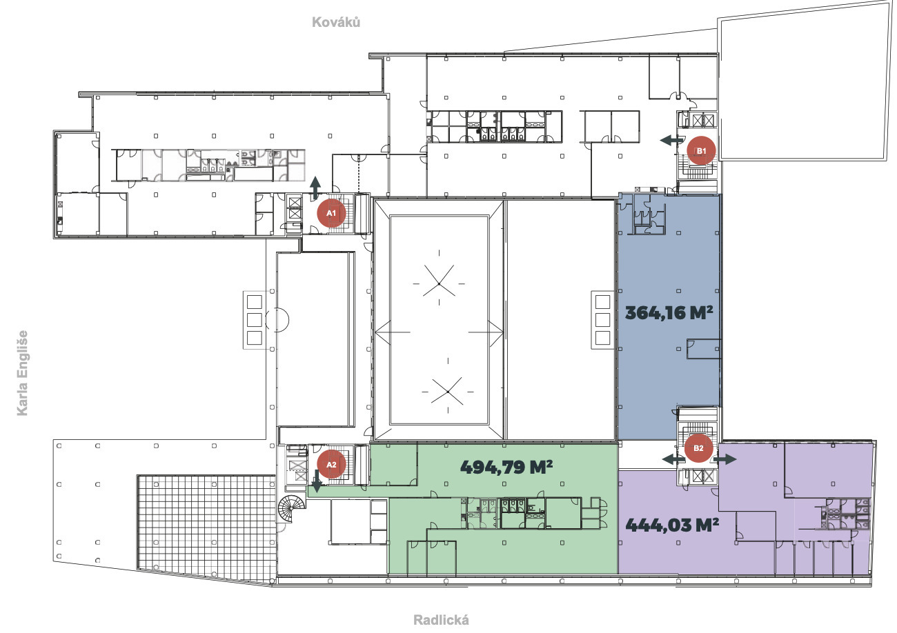
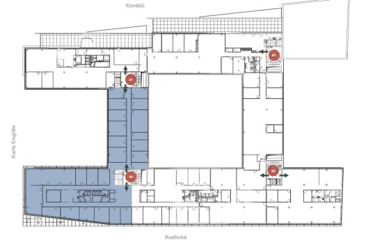
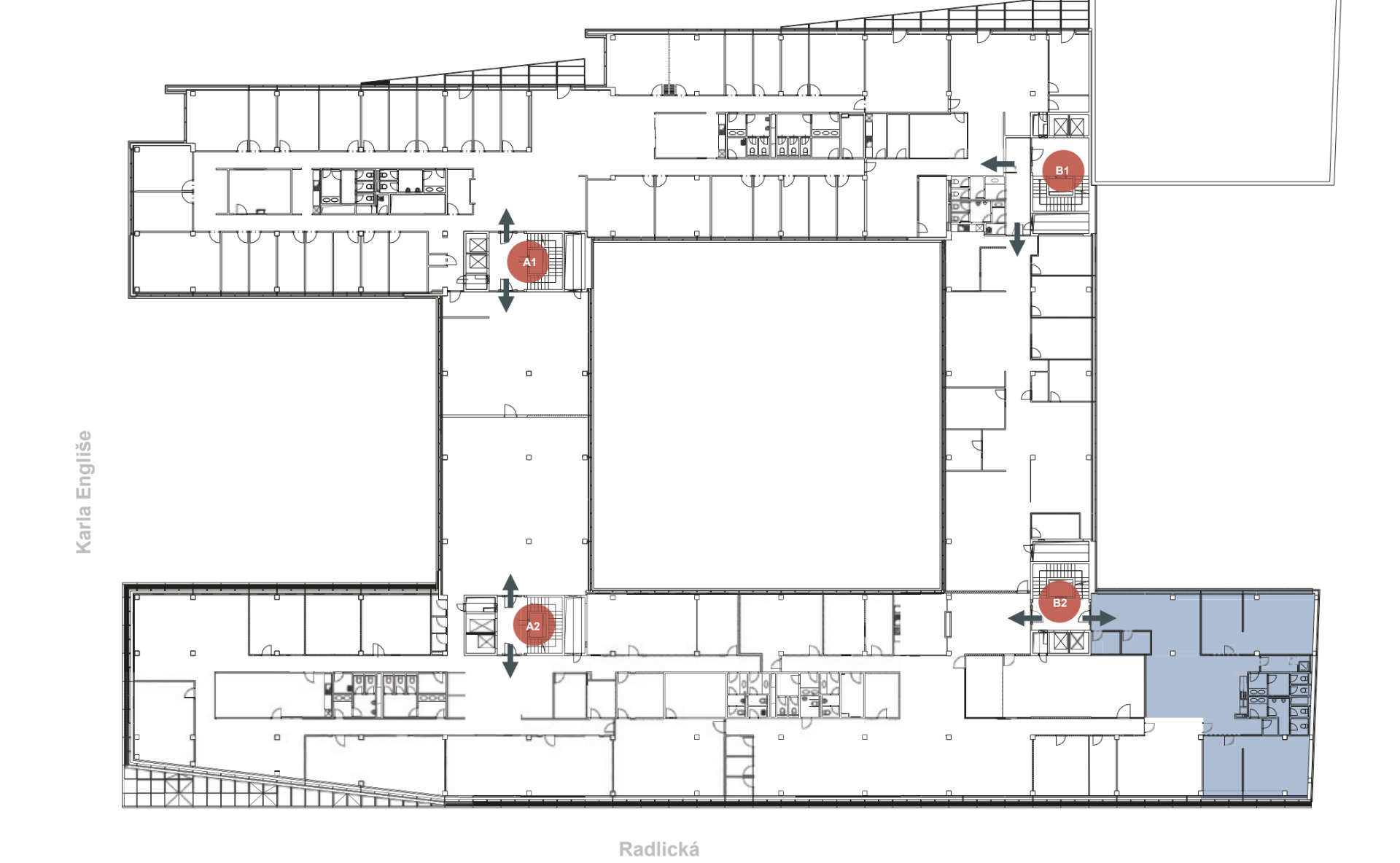
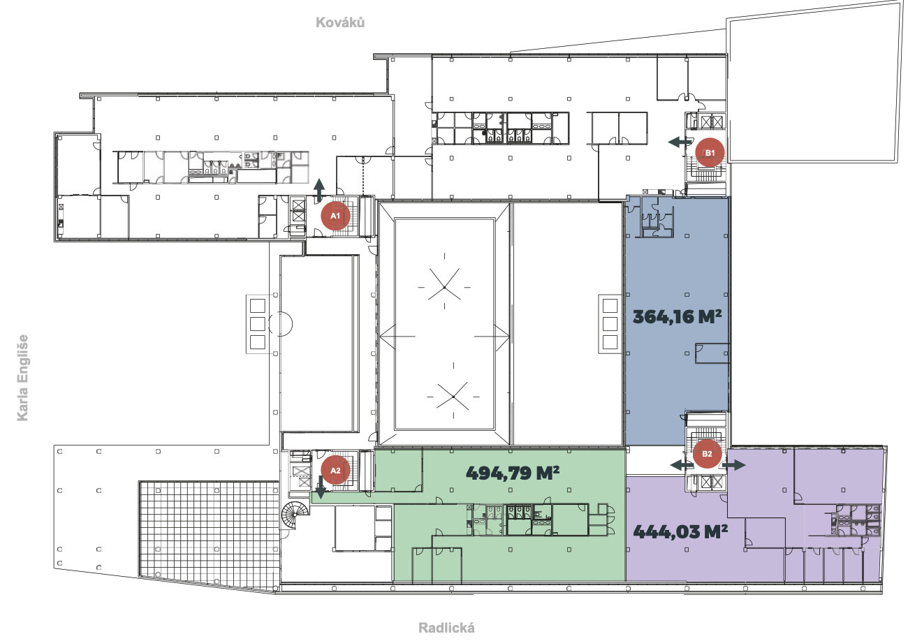
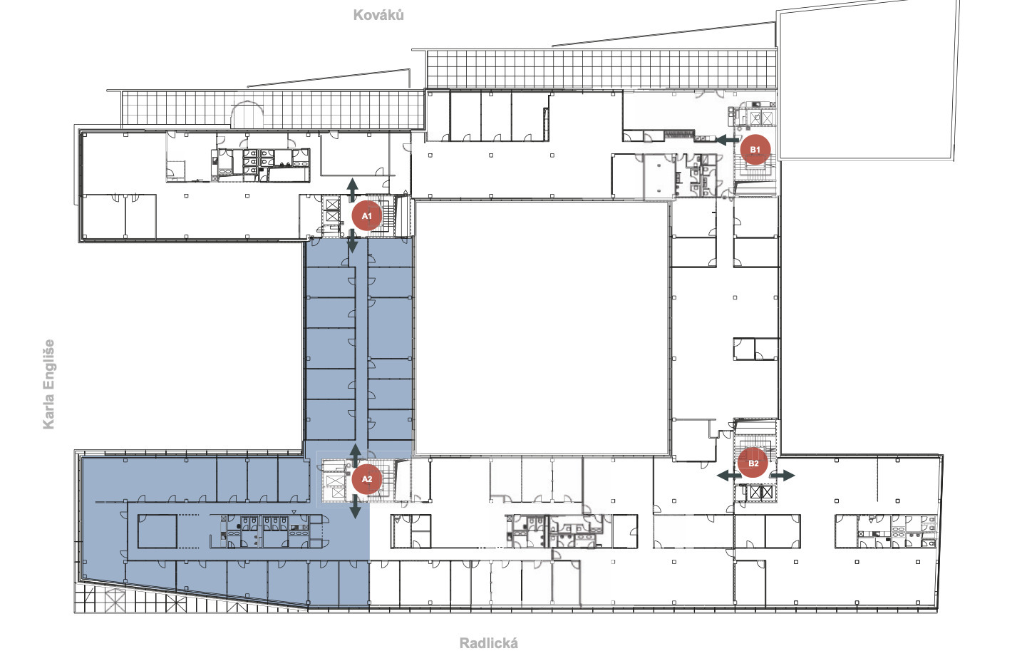
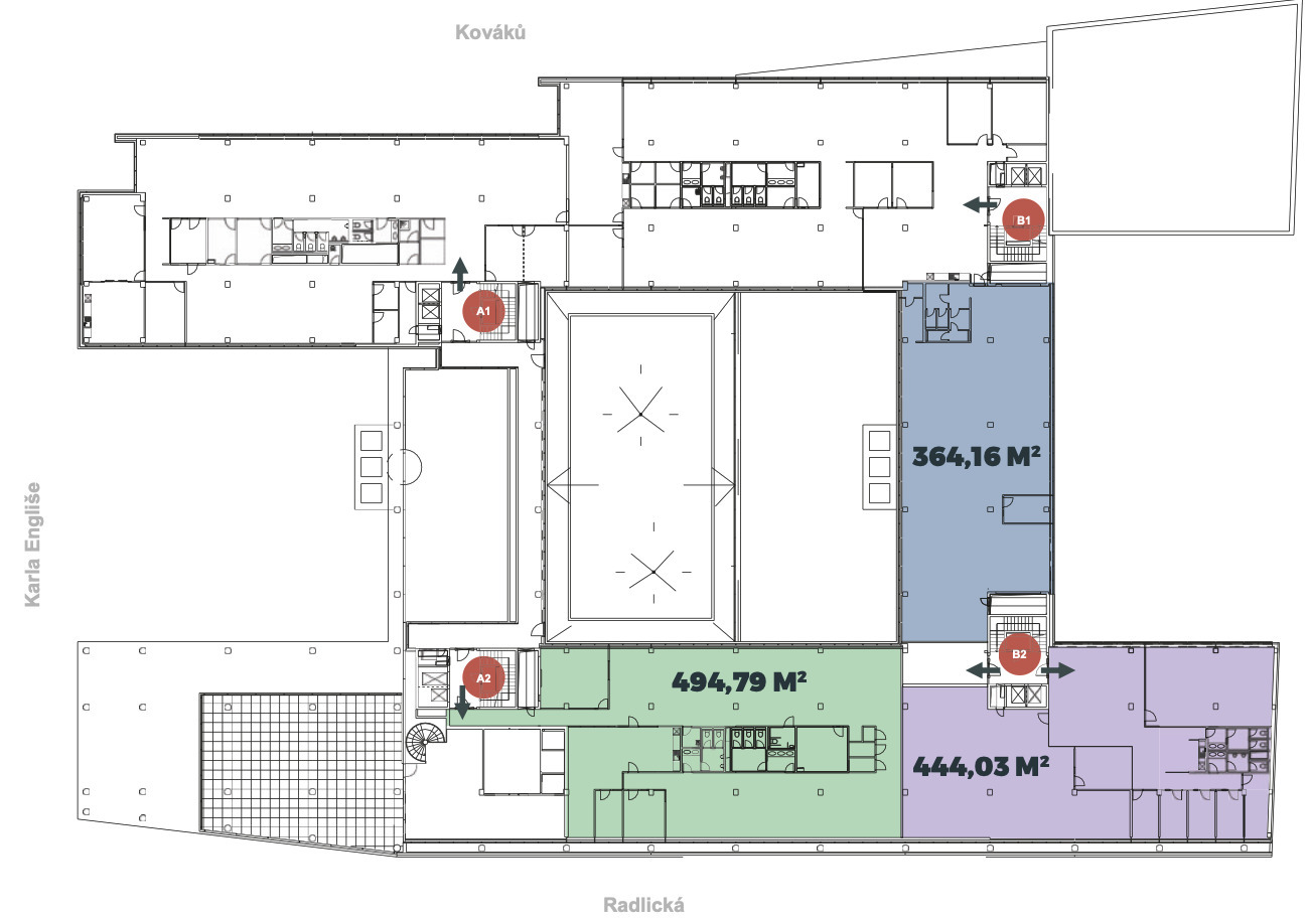
Volné prostory
Kontakt





































































































